蘭州新區化工園區污水處理廠(一期)項目位于化工園區最南端,緯五十路以南,經三十五路以東,經三十六路以西區域。污水處理廠(一期)項目規模2.5萬m3/d,總占地面積123畝。先行建設規模為1.25萬m3/d(部分公用工程按2.5萬m3/d的處理規模一次性建設到位),后期擴建規模為1.25萬m3/d。一期先行建設工程項目總投資為2.98億元。

污水處理廠(一期)項目由東華工程科技股份有限公司(原化工部第三設計院)設計,主要承擔集中達標處理化工園區(東區)各企業經預處理后滿足園區納管標準的生產廢水,園區企業排放廢水經企業排污出口分析小屋檢測合格,進入污水處理廠進行集中處理,企業出口分析小屋監測數據同步接入污水處理廠DCS控制系統。經污水處理廠集中處理后達到《城鎮污水處理廠污染物排放標準》(GB18918-2002)一級 A 標準的尾水排入下游水體(進出水指標見表1)。
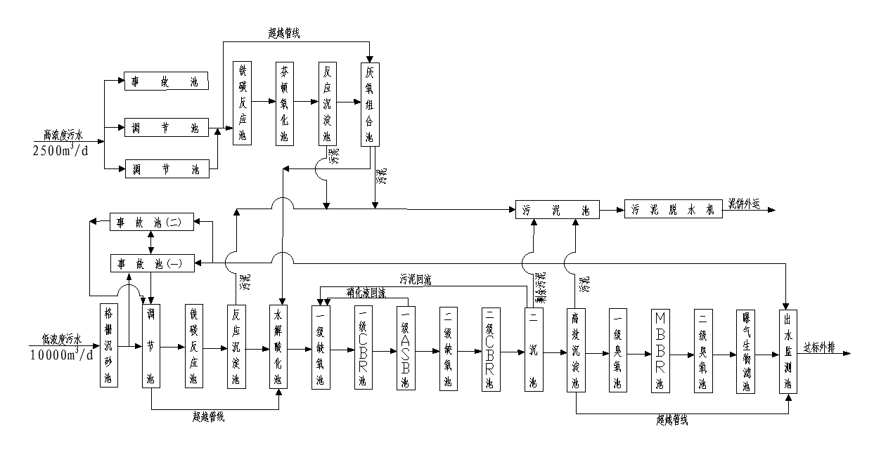
污水處理廠(一期)項目以生化法為主要處理工藝,裝置結合園區的產業方向和入駐企業的實際情況,按照“分類收集、分質處理”的原則,將園區的生產廢水進行高低濃區別之分,高濃生產廢水采用“鐵碳微電解+芬頓氧化+反應沉淀+厭氧反應”的工藝預處理后并入低濃生產廢水中繼續生化處理;低濃生產廢水采用“鐵碳微電解+反應沉淀+水解酸化+生化兩級A/O+二沉+臭氧兩級深度處理”工藝路線(工藝流程圖見圖1)。工藝系統雙線并聯設置并設置超越管線,系統運行靈活可靠。項目主要建設格柵沉砂池、事故池和調節池、鐵碳反應池、芬頓氧化池、反應沉淀池、厭氧反應池、生化組合池、二沉池、高效沉淀池、深度處理組合池、出水監測池等主要工藝構筑物,配套建設鼓風機房、加藥間、污泥脫水間、生產樓等輔助生產設施。

園區建設集中式污水處理廠旨在有效整合資源、集中專業化處理園區各企業的污水,降低園區整體污水處理費用,為園區落地企業減輕排污壓力。該項目的建成,將解決企業的排污困擾,降低企業污水單獨處理的綜合成本,對治理水污染,保護水質和生態平衡具有重要作用。同時,也為入園企業營造了良好的投資環境,有助于推動蘭州新區化工園區的總體規劃建設,給蘭州新區以及化工園區的發展帶來良好的社會效益。